Ackwood Lodge - The Lodge, LARGE, Private Lakeshore Estate. Perfect for Family Reunions | House in Bass Lake

14 Bedroom House in Hayward, Bass Lake
At Ackwood Lodge there's room for everyone in your group in this private lakeside estate. With access to the expansive lodge and property, you and your group will have room to stretch out, unwind, and feel normal again. The estate, its amenities, and location on Lac Courte Oreilles, a premiere Wisconsin lake, will make your group want to come back year after year. Stay with us, have it all.
Ackwood Lodge - The Lodge, LARGE, Private Lakeshore Estate Perfect for Family Reunions is located in Hayward. Ackwood Lodge - The Lodge, LARGE, Private Lakeshore Estate Perfect for Family Reunions provides accommodation, featuring Parking, Balcony/Terrace, Security/Safety, among other amenities. This House features Parking, Balcony/Terrace, Security/Safety, to make your stay a comfortable one.
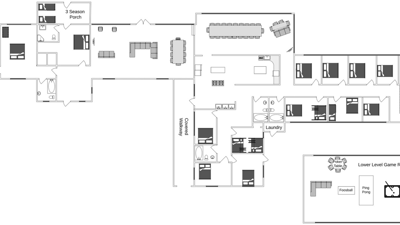
Ackwood Lodge - The Lodge, LARGE, Private Lakeshore Estate Perfect for Family Reunions has 14 Bedrooms , 5 Bathrooms, and max occupancy of 28 people. The minimum rental for this property is 1 nights, but this can change depending on the season you plan on staying. Previous guests have given good rated it, and VRBO labeled it a top-rated House because of the excellent services rendered by the owner or manager of this House, and has consistently provided great experiences for their guests. Most families or guests that use it recommend it to their friends and some of them are repeat guests. House has a friendly neighborhood, and the Hayward has interesting places to visit. If you want to learn more about the House in Hayward, such as places to visit and things to do nearby, you can check below to learn more.
Amenities
Facility Overview
-
Heating
-
5 bathrooms
-
Hair dryer
-
Bed sheets provided
-
14 bedrooms
-
Living room
-
Fireplace
-
Dining room
-
Refrigerator
-
Stovetop
-
Toaster
-
Oven
-
Microwave
-
Coffee/tea maker
-
Dishwasher
-
Cookware/dishes/utensils
-
Laundry facilities
-
Washing machine and dryer
-
Onsite parking
-
No pets allowed
-
Smoke-free property
-
Pool or billiards table
-
Foosball table
-
Arcade/game room
-
Table tennis
-
Unit size: 8000 sq ft (743 sq m)
-
At least 80% lighting from LEDs
-
100% renewable energy
-
Recycling
-
English
-
On the waterfront
-
Highchair
-
Travel crib
-
Internet access
-
Porch or lanai
-
Garden
-
Barbecue grill
-
Carbon monoxide detector installed (host has indicated there is a carbon monoxide detector on the property)
-
Fire extinguisher
-
Smoke detector installed (host has indicated there is a smoke detector on the property)
-
First aid kit
Policies
Extra-person charges may apply and vary depending on property policy government-issued photo identification and a credit card, debit card, or cash deposit may be required at check-in for incidental charges host has indicated there is a carbon monoxide detector on the property host has indicated there is a smoke detector on the property onsite parties or group events are strictly prohibited safety features at this property include a fire extinguisher and a first aid kit special requests are subject to availability upon check-in and may incur additional charges; special requests cannot be guaranteed this property is managed through our partner, vrbo. you will receive an email from vrbo with a link to a vrbo account, where you can change or cancel your reservation this property uses solar energy