Log Cabin - Dog Friendly, Near Disc Golf & Hiking | Cabin in Cambridge

3 Bedroom Cabin in Jeffersonville, Cambridge
Part of the Notch Lodges collection, the Charming Vermont Log Cabin is one of five unique nearby chalets—each within 2 miles of Smugglers Notch—offering the perfect blend of comfort and proximity to year-round adventure.
The Charming Vermont Log Cabin is a great place for your family and friends to get together. There are many hiking trails in the area. One mile from Smuggler's Notch and to great skiing. Within a few miles you can canoe, play golf frisbee, go to a tasking room at the distillery and lots more. The wedding barn is 2 minutes away.
You can also choose to stay in and relax by the fireplace or out on the porch swing.
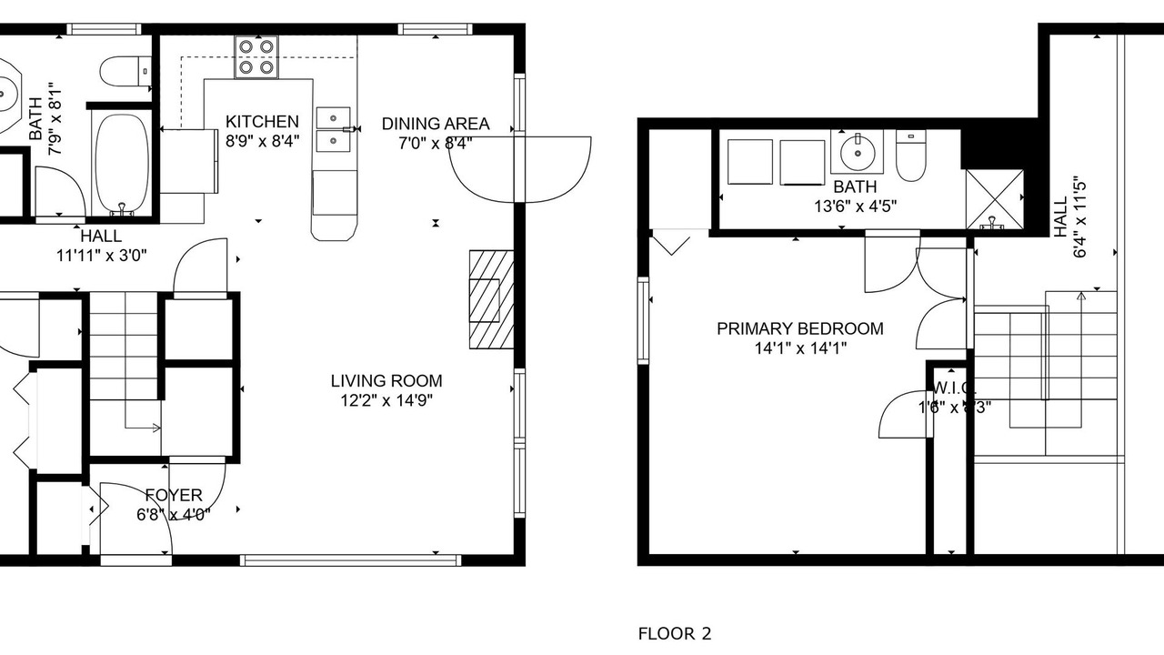
The main floor has one bedroom with a queen size bed, a second bedroom with 2 single beds as well as a bathroom with an in bath shower.
The second floor has a 3rd bedroom has with a queen size bed and an ensuite with shower. Each bedroom has its own air conditionning unit.
Outdoor dining space and a gas grill are available. A firepit with seating for 6 people is there for you!
Jeffersonville/Cambridge has family restaurants, an art gallery, a multi function trail, for walking or biking. Smuggler's Notch ski hill is 1 mile up the mountain and great hiking nearby. A well stocked village grocery store and an organic food store can be found in the village.
In winter (date varies depending on weather) the direct route over the mountain between the log cabin and Stowe is closed. The drive around is approximately 50 minutes.
Member of the VTSTRA (Vermont Short Term Rental Alliance)
Vermont tax id MRT10127166
Log Cabin - Dog Friendly, Near Disc Golf & Hiking is located in Jeffersonville. Log Cabin - Dog Friendly, Near Disc Golf & Hiking provides accommodation, featuring Air Conditioner, Parking, Internet, among other amenities. This Cabin features Air Conditioner, Parking, Internet, to make your stay a comfortable one.
Log Cabin - Dog Friendly, Near Disc Golf & Hiking has 3 Bedrooms , 2 Bathrooms, and max occupancy of 6 people. The minimum rental for this property is 1 nights, but this can change depending on the season you plan on staying. Previous guests have given good rated it, and VRBO labeled it a top-rated Cabin because of the excellent services rendered by the owner or manager of this Cabin, and has consistently provided great experiences for their guests. Most families or guests that use it recommend it to their friends and some of them are repeat guests. Cabin has a friendly neighborhood, and the Jeffersonville has interesting places to visit. If you want to learn more about the Cabin in Jeffersonville, such as places to visit and things to do nearby, you can check below to learn more.
Amenities
Facility Overview
-
Air conditioning
-
Heating
-
Towels provided
-
Bathtub or shower
-
2 bathrooms
-
Hair dryer
-
Bed sheets provided
-
3 bedrooms
-
Fireplace
-
Living room
-
Toaster
-
Cookware/dishes/utensils
-
Coffee/tea maker
-
Oven
-
Refrigerator
-
Dishwasher
-
Spices
-
Microwave
-
Stovetop
-
Washing machine and dryer
-
Laundry facilities
-
Near laundromat
-
Onsite parking
-
Car recommended
-
Pet friendly
-
Welcoming dogs only
-
2 total pets
-
Smoke-free property
-
Rock climbing nearby
-
Hiking nearby
-
Hiking/biking trails nearby
-
Water park
-
Mountain biking nearby
-
Fitness facilities nearby
-
Kayaking nearby
-
Basketball nearby
-
Sledding nearby
-
Cycling nearby
-
Swimming nearby
-
Stereo
-
Games
-
Books
-
Video library
-
Smart TV
-
DVD player
-
Unit size: 1400 sq ft (130 sq m)
-
English
-
French
-
Near a health or beauty spa
-
In a rural location
-
Iron/ironing board
-
Free WiFi
-
Garden
-
Balcony
-
Gas grill
-
Firepit
-
Smoke detector installed (host has indicated there is a smoke detector on the property)
-
Carbon monoxide detector installed (host has indicated there is a carbon monoxide detector on the property)
-
First aid kit
-
Deadbolt lock
-
Fire extinguisher
-
Cross-country skiing and snowboarding nearby
Policies
Extra-person charges may apply and vary depending on property policy government-issued photo identification and a credit card, debit card, or cash deposit may be required at check-in for incidental charges host has indicated there is a carbon monoxide detector on the property host has indicated there is a smoke detector on the property onsite parties or group events are strictly prohibited safety features at this property include a fire extinguisher, a first aid kit, and a deadbolt lock special requests are subject to availability upon check-in and may incur additional charges; special requests cannot be guaranteed this property has outdoor spaces, such as balconies, patios, terraces which may not be suitable for children; if you have concerns, we recommend contacting the property prior to your arrival to confirm they can accommodate you in a suitable room this property is managed through our partner, vrbo. you will receive an email from vrbo with a link to a vrbo account, where you can change or cancel your reservation