Pinewood Lodge.Under new ownership, put 4326266 in search bar for availability | House in Au Train

10 Bedroom House in Au Train
CHECK THE NEW LISTING FOR AVAILABILITY: LISTING #4326266. The Pinewood Lodge Estate is just a 10 minute drive from Munising and the Pictured Rocks National Lakeshore. This incredible 8,500 square foot private estate is the largest beach front log home vacation rental in the entire state. We are located on one of the top 10 inland sugar sand beaches in the U.S. and its nestled in the shelter of Au Train Bay. Our guests will have the luxury of enjoying several hundred feet of perfect (rock-free) private sand beach with a stunning custom log gazebo overhanging the beach & overlooking majestic Lake Superior and Au Train Island. If you love spending time outdoors and soaking up the sun, you will enjoy the 5000 square feet of deck surrounding it as well as several hundred feet of wooded walking paths with romantic private sitting areas as well as a large fire pit area with wood provided,. (Fire pit is not accessible in the winter months) Camp fires in designated pit area only ( BEACH fires strictly prohibited) Absolutely NO FIREWORKS on property at anytime. Finally, you can relax in the full size indoor cedar sauna or our indoor cinema after a long day of activities.
This lodge is ABSOLUTELY a no PET ZONE(Sorry due to owner allergies we cannot allow your furry friend anywhere on the property) The maximum sleeping capacity is 34 and under no circumstance may be exceeded. Events such as weddings, family reunions that will exceed more than 34 people on the property at any given time are prohibited. No camping/campers are allowed under any circumstances on the property
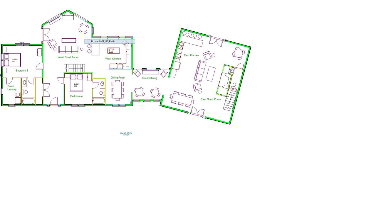
The Pinewood sleeps up to 34 people (and that includes adults, children, and infants). There are 10 bedrooms, 7 full and 1 half bath, 2 fully stocked granite counter topped kitchens, dining seating for 36 (+ 2 highchairs & 2 toddler beds) as well as abundant sitting areas for socializing in either the east or west great rooms—each with its own unique fireplace (constructed with stones hand-picked from the Lake Superior shore). (Please e-mail for virtual tour & videos as well as expanded floor plan drawings.) Air condition throughout added for 2022 season as well as a 50 AMP EV parking lot outlet. (message us for lock code)
Everything needed for the comforts of home are provided in this lodge including a Bunn commercial drip coffee maker (filters provided) as well as a Keurig (BYO pods:). On-site laundry, 2 gas grills w/ backup propane, basic spices, and all matching dinner and cookware for your large group. Pinewood Lodge is also equipped with 3 dish Smart TV’s, free wireless high speed internet, DVD players, movies, as well as game system inputs that are provided in the brand new indoor cinema. UNFORTUNATELY WE ARE UNABLE TO OFFER WEATHER RELATED CANCELLATIONS, REFUNDS, OR DATE CHANGES UNDER ANY CIRCUMSTANCES
Our location is only a 10 minute drive to countless sightseeing adventures which include dozens of waterfalls and boat tours of the Pictured Rocks National Lakeshore ( see our Facebook page for our families personal recommendations and reviews) If you enjoy hiking, biking or atv/snowmobiling, trails are nearby—or just hop on a ferry and spend the day enjoying Grand Island. Also available on-site are 9 kayak/SUP rentals, they are $99 each for the duration of your stay. We offer a substantial discount if you prepay with your booking for all 9 units for just $500 for the entire duration of your stay. Available are 2-standup paddle boards, 1-8ft & 4-10ft sit on top kayaks, 1-12ft,& 1-14ft traditional recreational kayak with additional boats available upon request .(life jackets included). Also Less than half a mile away from the lodge you will find a public boat launch for your ultimate fishing experience as well as the historic Brownstone Inn with great food, a large craft beer selection, and a comfortable atmosphere. For our atv/snowmobiling guests, you can ride from the Pinewood lodge a 1/2 mile west and get on the main snowmobiling artery that can take you nearly anywhere in the Upper Peninsula.
Pinewood LodgeUnder new ownership, put 4326266 in search bar for availability is located in Au Train. Pinewood LodgeUnder new ownership, put 4326266 in search bar for availability provides accommodation, featuring Child Friendly, Security/Safety, Wellness Facilities, among other amenities. This House features Child Friendly, Security/Safety, Wellness Facilities, to make your stay a comfortable one.
Pinewood LodgeUnder new ownership, put 4326266 in search bar for availability has 10 Bedrooms , 8 Bathrooms, and max occupancy of 34 people. The minimum rental for this property is 1 nights, but this can change depending on the season you plan on staying. Previous guests have given good rated it, and VRBO labeled it a top-rated House because of the excellent services rendered by the owner or manager of this House, and has consistently provided great experiences for their guests. Most families or guests that use it recommend it to their friends and some of them are repeat guests. House has a friendly neighborhood, and the Au Train has interesting places to visit. If you want to learn more about the House in Au Train, such as places to visit and things to do nearby, you can check below to learn more.
Amenities
Policies
Extra-person charges may apply and vary depending on property policy government-issued photo identification and a credit card, debit card, or cash deposit may be required at check-in for incidental charges host has indicated there is a carbon monoxide detector on the property host has indicated there is a smoke detector on the property note from host: groups/events must not exceed max capacity of 34 onsite parties or group events are strictly prohibited safety features at this property include a fire extinguisher, a first aid kit, and a deadbolt lock special requests are subject to availability upon check-in and may incur additional charges; special requests cannot be guaranteed this property is managed through our partner, vrbo. you will receive an email from vrbo with a link to a vrbo account, where you can change or cancel your reservation